
Hortum Kulesi (Hose Tower) Sistemleri
Emniyetli, hızlı ve kontrollü hortum yönetimi ile iskele/rıhtım/dolfen operasyonlarını standardize edin.

MEGA, MEGA, iskele/rıhtım/dolfen hatlarında (yükleme-boşaltma) kullanılan esnek hortumların gemiye alınması, taşınması ve operasyon boyunca güvenli şekilde yönetilmesi için Hose Tower (Hortum Kulesi) çözümleri sunar.
Çözüm; çelik konstrüksiyon kule, hortum taşıma sistemi, kaldırma mekanizması (teleskopik/mafsallı), hidrolik vinçler ve operasyonu destekleyen yardımcı ekipmanlardan oluşan bütünleşik bir yapıdır.
Neyi çözer?
- Çoklu hortum yönetimi: Aynı kule üzerinde birden fazla hortumu düzenli ve kontrollü şekilde yöneterek ürün/hat değişkenliğini kolaylaştırır.
- Operasyon süresini kısaltma: Hortumların manevrasını hızlandıran kurgular sayesinde yanaşma/operasyon akışını iyileştirir.
- Emniyet ve ergonomi: Hortumun taşınması sırasında kontrollü hareket, doğru destekleme ve operatör güvenliğini artıran aksesuarlarla riskleri azaltır.
Sistem Bileşenleri ve Opsiyonlar
Hortum Kulesi tasarımları genellikle: çelik yapı + kaldırma sistemi + hortum destekleme/taşıma elemanları + güvenlik ve operasyon ekipmanlarından oluşur.
İhtiyaca göre opsiyonlar:
- Uzaktan kumanda / yerel kontrol
- Operatör mahali/odası
- Aydınlatma, kamera, damlama tavası
- Yangınla mücadele ekipman entegrasyonu
Sertifikasyon
Çözüm Tipleri
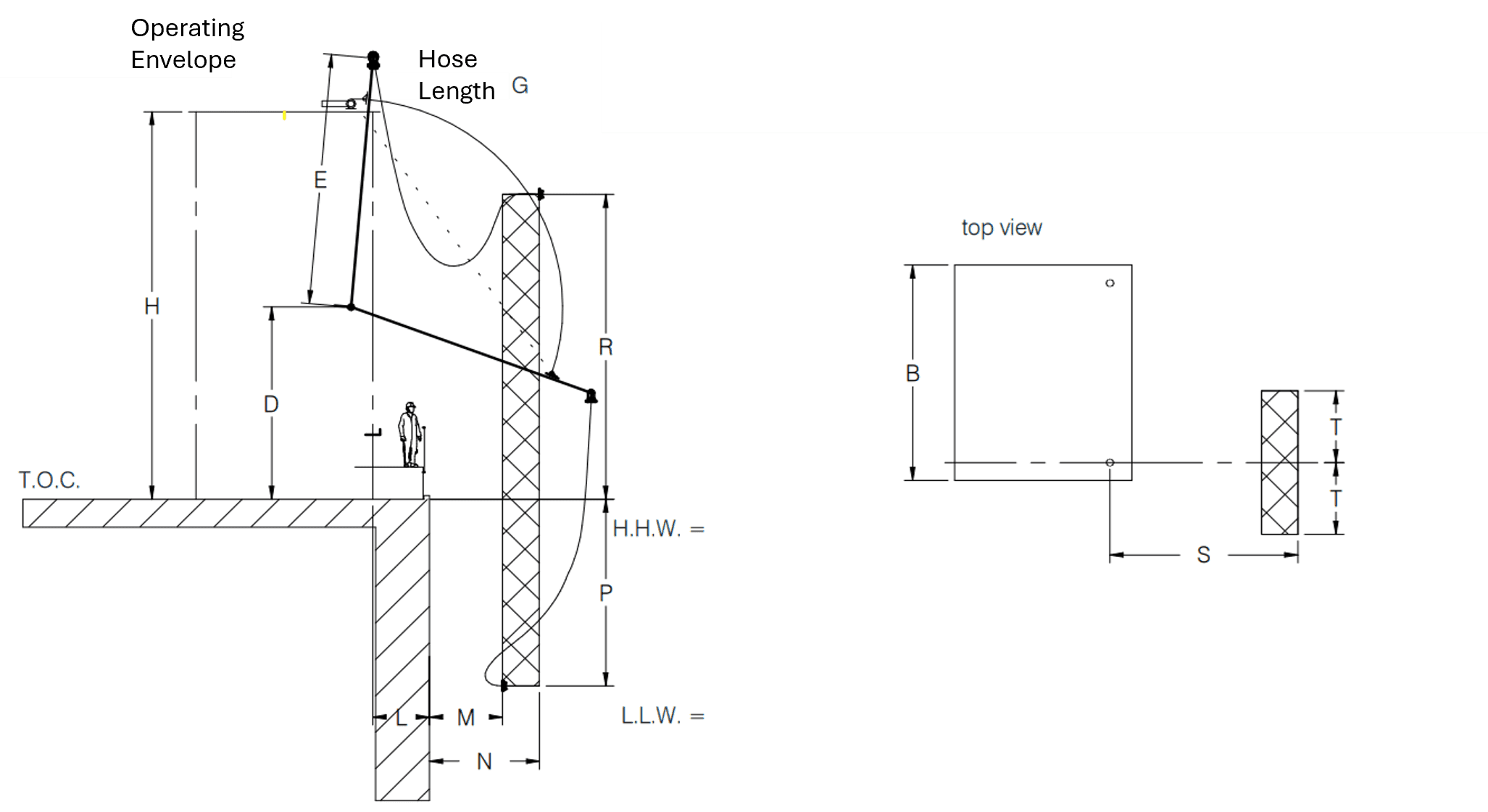
Saha kısıtları (gelgit, rıhtım geometrisi, serbest alan, gemi çeşitliliği, hortum sayısı/çapı, rüzgâr yükleri) ve operasyon alışkanlıklarına göre aşağıdaki tiplerden uygun olanı seçeriz:
1- Klasik Hortum Kulesi (Konvansiyonel Hose Tower)
Klasik kule mimarisi; hortumların düzenli istiflenmesi ve kontrollü kaldırma/indirme fonksiyonları üzerine kurulur. Standart ve yaygın iskele düzenlerinde maliyet-fayda dengesi güçlü bir çözümdür.
2- Hibrit Hortum Kulesi (Hybrid Hose Tower)
Saha şartları daha zorlayıcı olduğunda; hareket kabiliyeti ve erişim kabiliyetini artıran hibrit yaklaşımlar tercih edilir (tasarım seçimi; gemi çeşitliliği ve manevra gereksinimine göre yapılır).
3- Entegre Hortum Kulesi (Integrated Hose Tower)
Kulenin; platform, taşıyıcı çerçeve, ekipman yerleşimi ve (gerektiğinde) kontrol/operatör fonksiyonlarıyla daha entegre ele alındığı yaklaşım. Büyük terminallerde standartlaşma ve bakım kolaylığı için sık tercih edilir.
4- Mafsallı Hortum Kulesi (Knuckle Type Hose Tower)
Erişim-açı gereksinimi yüksek, yerleşimi zor veya gemi bordo geometrisi değişken operasyonlarda mafsallı mimari avantaj sağlar; hortumu hedef bölgeye daha rahat “taşıma” hedefiyle kurgulanır.
Not: Tip seçimi “broşür seçimi” değil, saha verisiyle yapılmalı. MEGA bu nedenle her projeyi rıhtım ölçüleri, hortum teknik özellikleri, gemi boyutları, çevresel yükler ve operatör senaryoları ile birlikte değerlendirir.
MEGA Yaklaşımı
Uçtan uca mühendislik
MEGA; konseptten başlayarak mekanik & elektrik tasarım, dayanım hesapları, dokümantasyon, FAT/SAT, saha montajı ve devreye almaya kadar süreci yönetir.
Otomasyon ve dijital entegrasyon
Hortum Kulesi projesi; terminal otomasyonu, izin-kilitleme (interlock), operasyon kayıtları ve bakım planlarıyla birlikte düşünülmelidir. MEGA, ihtiyaç halinde sistemi SCADA/DCS'e entegre edecek şekilde kurgular.
Yaşam döngüsü desteği
Bakım/servis planı, periyodik kontroller, kritik yedek parça yaklaşımı ve işletme prosedürleri ile çözümü uzun ömürlü hale getiririz.
Tipik Proje Akışı
Saha & operasyon verisi toplama (rıhtım ölçüleri, gemi tipleri, hortum adedi/çapı/uzunluğu, gelgit, rüzgâr)
Konsept seçimi (konvansiyonel / hibrit / entegre / mafsallı)
Detay mühendislik + hesaplar + Yerleşim + güvenlik fonksiyonları
İmalat + Fabrika Kabul Testi (FAT) + sahaya sevk
Saha Montaj + Saha Kabul Testi (SAT) + devreye alma + eğitim ve dokümantasyon
Teklif için gerekli minimum bilgiler
- İstenen hortum sayısı, ürün tipi (sıvı/gaz), hortum çap/uzunluk/ağırlık
- Rıhtım kotları, gemi borda çalışma aralığı, gelgit aralığı
- Elektrik/ATEX gereksinimleri, kontrol felsefesi (yerel-uzaktan, SCADA/DCS)
- İstenen opsiyonlar (kamera, aydınlatma, damlama tavası, yangın ekipmanı vb.)
Hortum Makarası (Hose Reel) Sistemleri
Sıvı ve buhar transfer operasyonları için kontrollü, güvenli ve ergonomik hortum yönetimi sağlayın.
MEGA, iskele, dolum istasyonu ve terminal uygulamalarında kullanılan esnek hortumların güvenli şekilde sarılması, açılması ve operasyon sırasında kontrollü olarak yönetilmesi için Hortum Makarası (Hose Reel) çözümleri sunar.
Hortum Makarası sistemleri; operatör güvenliğini artırır, hortum ömrünü uzatır ve yükleme-boşaltma operasyonlarının düzenli ve verimli şekilde yürütülmesini sağlar.
Ne Sağlar?
- Hortumların kontrollü sarılması ve açılması
- Operasyon alanında düzen ve güvenlik
- Daha kısa operasyon süreleri
- Hortumda bükülme, sürtünme ve hasarın azaltılması
- Buhar/Gaz Geri Dönüş uygulamalarında güvenilir çözüm
Sistem Bileşenleri ve Opsiyonlar
- Çelik gövde ve tambur yapısı
- Manuel, elektrikli veya hidrolik tahrik
- Hortum kılavuz mekanizması
- Kilitleme ve emniyet sistemleri
- Taşıyıcı kol (sabit / teleskopik / mafsallı)
Kullanım Alanları
- Deniz terminalleri ve iskele uygulamaları
- Tanker dolum-boşaltma istasyonları
- Kimyasal ve petrokimya tesisleri
- Buhar geri kazanım (VRU) sistemleri
Çözüm Tipleri
Saha kısıtları, hortum sayısı/çapı ve operasyon alışkanlıklarına göre aşağıdaki tiplerden uygun olanı seçeriz:
1- Standart Hortum Makarası
Sabit veya hareketli montaj seçenekleriyle, tek veya çoklu hortum uygulamaları için tasarlanmış klasik hortum makarası çözümleridir. Akaryakıt, kimyasal ve endüstriyel sıvı transferlerinde yaygın olarak kullanılır.
2- Teleskopik Hortum Makarası
Teleskopik kol yapısı sayesinde daha geniş erişim alanı sunar. Sınırlı alanlarda veya farklı gemi / araç pozisyonlarına uyum gerektiren uygulamalarda tercih edilir.
3- Buhar/Gaz Geri Dönüş Hortum Makarası
Dolum sırasında oluşan buharların güvenli şekilde geri kazanılması için tasarlanmış özel hortum makaralarıdır. Emisyon kontrolü, çevresel uyum ve operasyonel güvenlik açısından kritik öneme sahiptir.
4- Özel Tasarım Hortum Makarası Sistemleri
Hortum çapı, uzunluğu, ürün tipi ve saha koşullarına göre projeye özel tasarlanan çözümlerdir. MEGA, proses gereksinimlerine uygun olarak mekanik tasarım ve entegrasyonu gerçekleştirir.
MEGA Yaklaşımı
Mühendislik Odaklı Tasarım
Her hortum makara sistemi; hortum ağırlığı, çalışma yarıçapı, rüzgâr yükleri ve operasyon senaryoları dikkate alınarak tasarlanır.
Otomasyon ve Entegrasyon
Gerekli durumlarda hortum makara sistemleri; terminal otomasyonu, izin-kilitleme (interlock) ve SCADA/DCS altyapılarına entegre edilebilir.
Yaşam Döngüsü Desteği
MEGA; imalat, FAT, saha montajı, SAT, devreye alma ve bakım-servis süreçlerini uçtan uca yönetir.
Sürdürülebilirlik ve Bakım
Bakım/servis planı, periyodik kontroller, kritik yedek parça yaklaşımı ve işletme prosedürleri ile çözümü uzun ömürlü hale getiririz.

Tipik Proje Akışı
- 1Saha & operasyon verisi toplama (rıhtım ölçüleri, gemi tipleri, hortum adedi/çapı/uzunluğu, gelgit, rüzgâr)
- 2Konsept seçimi (konvansiyonel / hibrit / entegre / mafsallı)
- 3Detay mühendislik + hesaplar + Yerleşim + güvenlik fonksiyonları
- 4İmalat + Fabrika Kabul Testi (FAT) + sahaya sevk
- 5Saha Montaj + Saha Kabul Testi (SAT) + devreye alma + eğitim ve dokümantasyon
Teklif için gerekli minimum bilgiler
- İstenen hortum sayısı, ürün tipi (sıvı/gaz), hortum çap/uzunluk/ağırlık
- Rıhtım kotları, gemi borda çalışma aralığı, gelgit aralığı
- Elektrik/ATEX gereksinimleri, kontrol felsefesi (yerel-uzaktan, SCADA/DCS)
- İstenen opsiyonlar (kamera, aydınlatma, damlama tavası, yangın ekipmanı vb.)

